Поможем найти офис в аренду!
Снять офис
Москва, Орджоникидзе д.11 с.11

Жилой дом "на Котельнической набережной"

  • Помещение 71 м2 Жилой дом на Котельнической набережной – фото объекта
  • Помещение 71 м2 Жилой дом на Котельнической набережной – фото объекта
  • Помещение 71 м2 Жилой дом на Котельнической набережной – фото объекта
Помещение 71 м2 Жилой дом на Котельнической набережной – фото объектаПомещение 71 м2 Жилой дом на Котельнической набережной – фото объектаПомещение 71 м2 Жилой дом на Котельнической набережной – фото объекта
71 м2
Тип недвижимости: Жилой дом
Округ: ЦАО
Район: Таганский
Метро: Китай-город (11 минут пешком)
Новокузнецкая (11 минут пешком)
Таганская (12 минут пешком)
Класс объекта: B
Тип помещения: Офисное
Наличие мебели: Без мебели
ПАРКОВКА
Подземная:
нет
Наземная:
нет
Городская:
да
Платная60 руб. в час
В жилом доме "на Котельнической набережной", в аренду предлагается офисное помещение площадью 71 кв. м. Здание класса "В", удобно расположено в пешей доступности от метро "Таганская" и "Китай-город". В здании имеется все необходимое для комфортной работы арендаторов.
Площадь, м2 Этаж Стоимость, м2/год Стоимость в месяц
71 1 25 352 руб. 149 999 руб.


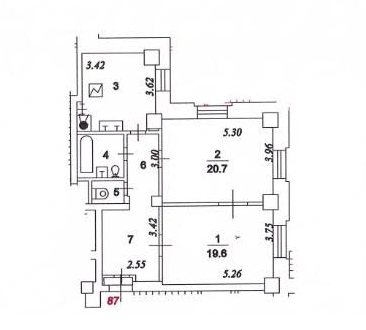
План помещения

Помещение 71 м2
Налоги Состояние Тип
УСН С отделкой Офисное

Организовать просмотр

Я даю согласие на обработку моих персональных данных в соответствии с Условиями